
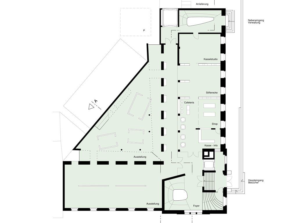
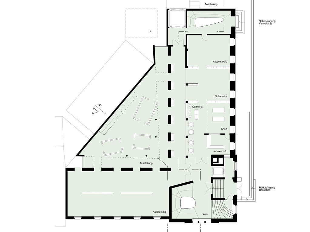
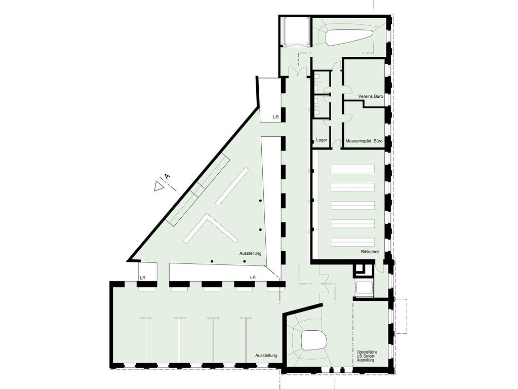
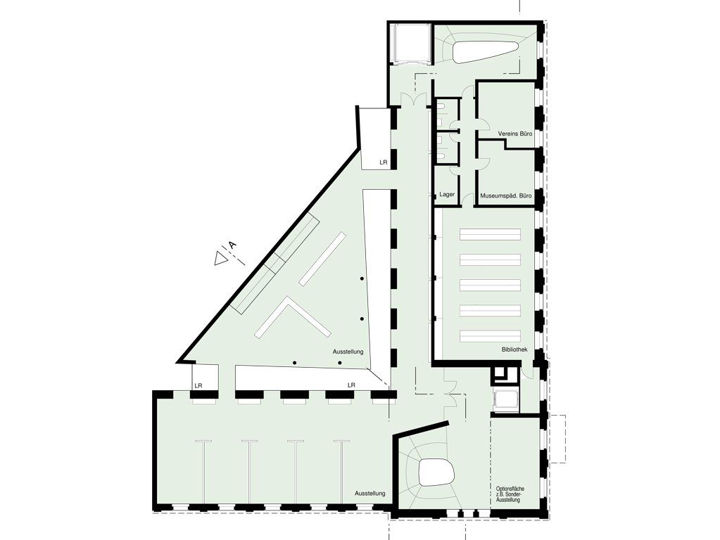
Stadtmuseum
Sanierung und Umbau
Vorhaben: Sonderbau
Leistungen: Architektur Wettbewerb
Auftraggeber: öffentlich
in Zusammenarbeit
mit BAS Holger Möller
Auszug aus der Auslobung: "Anlässlich des 100-jährigen Jubiläums der Ersterwähnung Kassels soll das vor dreißig Jahren gegründete Stadtmuseum an seinem derzeitigen Standort eine dringend notwendige räumliche Erweiterung sowie gestalterische und technische Modernisierung erfahren. Ziel ist es, mit einer museologischen Neukonzeption Besucher orientierte Rahmenbedingungen für eine spannende Vermittlung stadtgeschichtlicher, kultureller und gesellschaftlicher Inhalte zu schaffen. Durch eine produktive Wechselbeziehung zwischen der wissenschaftl-ichen Arbeit und Ausstellungstätigkeit des Museumsteams und den Interessen und Anregungen der unterschiedlichen Gruppen der Bevölkerung zielt das Stadtmuseum auf eine Stärkung der Identifikation der Menschen mit ihrer Stadt."



