
Umbau Wohnbaus
Nutzungsänderung Laden und Scheune
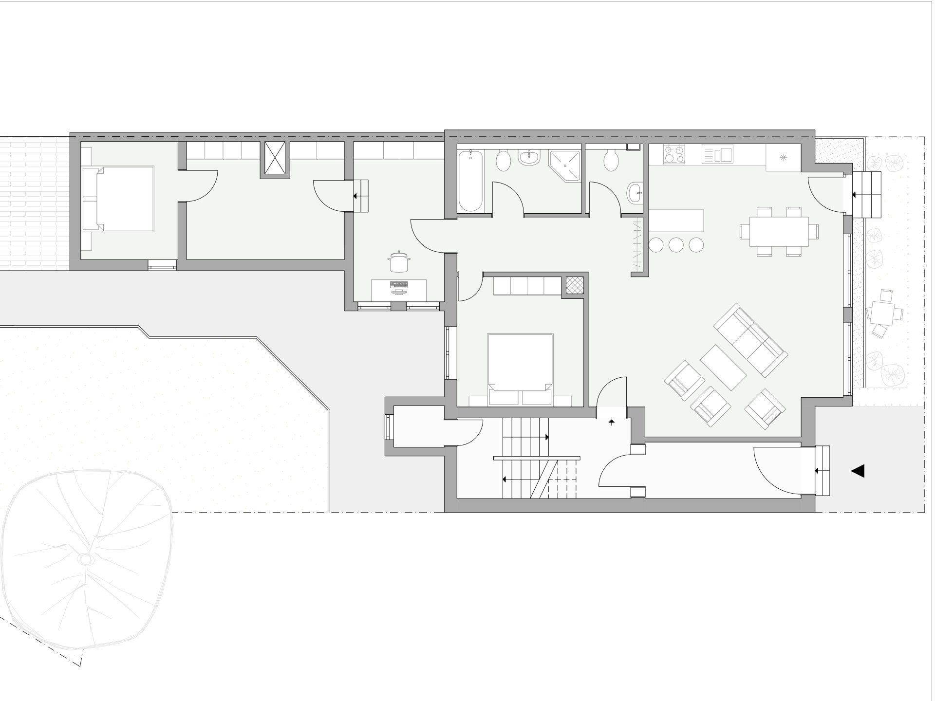
Vorhaben: Bauen im Bestand
Leistungen:Architektur LPH 1 - 8
Auftraggeber: privat
Status: in Planung
Das um 1910 erbaute Haus soll neben der langjährigen Nutzung als Wohn- und Geschäftshaus, nun als reines Wohnhaus umfunktioniert werden. Der im Erdgeschoss gelegenen Laden mit eigenem Zugang und die angrenzende, leerstehende Scheune werden nun umgebaut und der Grundriss neu umstrukturiert. Die in den Fünfzigern zusätzlich erbaute große Ladenfront, soll auch weiterhin bestehen bleiben, um das Wohn- und Esszimmer optimal zu belichten. Um die Vorfläche attraktiver zu gestalten und einen Abstand zum öffentlichen Raum zu gewinnen, wird diese teilweise begrünt und eingefriedet, somit entsteht ein zusätzlicher Freisitz.



