
Stadtvilla
Neubau Einfamilienhaus
Vorhaben: Wohnungsbau
Leistungen: Architektur LPH 1-8
Auftraggeber: privat
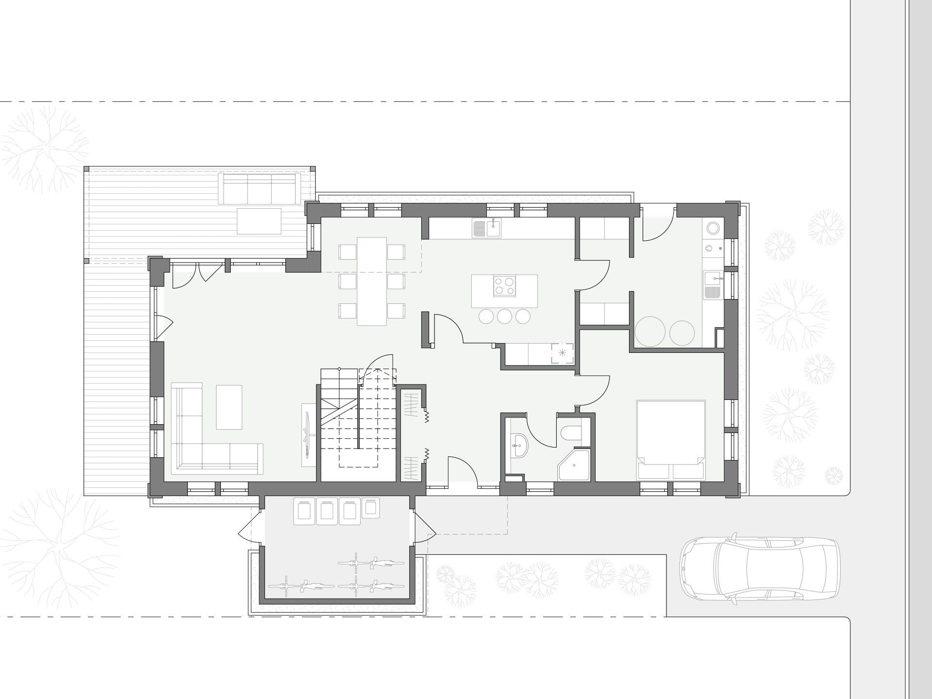
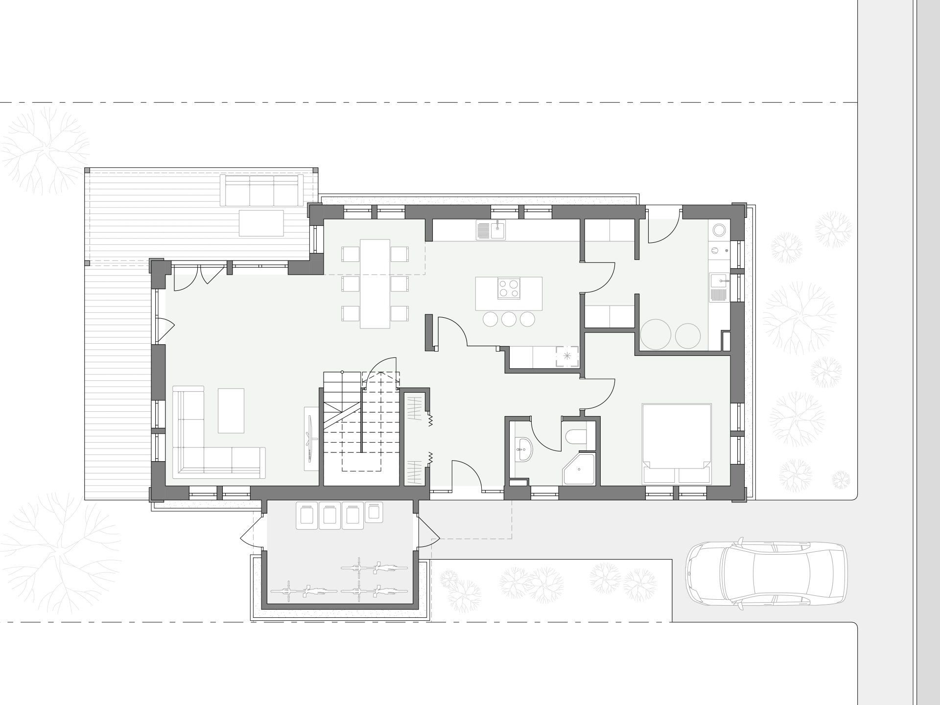
Das Grundstück liegt in einem gut eingewachsenen Wohnviertel am Tannenwäldchen im Vorderen Westen Kassels. Hierfür ist ein freistehendes Einfamilienhaus für eine vierköpfige Familie geplant. Ziel der Planung ist es, ein der Umgebung angepasstes Villencharakter des Hauses herauszuarbeiten, daher erhält das Haus neben der villenähnlichen Kubatur, Stulp-Fenster mit Oberlichtern und gestalterisch abgesetzten Umrahmungen.
Das Gebäude wird Massiv ausgeführt mit einem Walmdach und einer zum Westen gerichtenten Dachgaube, einem offenem PKW-Stellplatz und einem ebenfalls massiv, gebauten Fahrrad- und Müllsammelraum.



