
Neubau Feuerwehr
Konzeptstudie
Vorhaben: Sonderbau
Leistungen: Architektur LPH 1-2
Auftraggeber: gewerblich
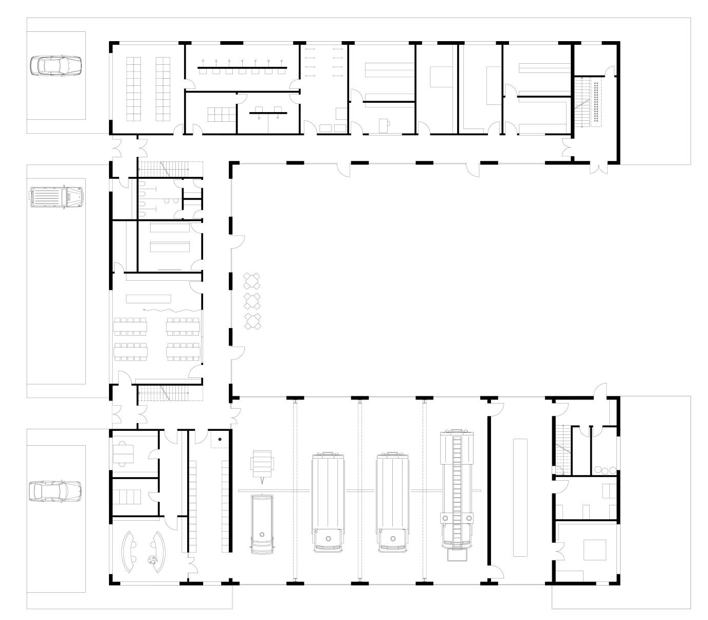
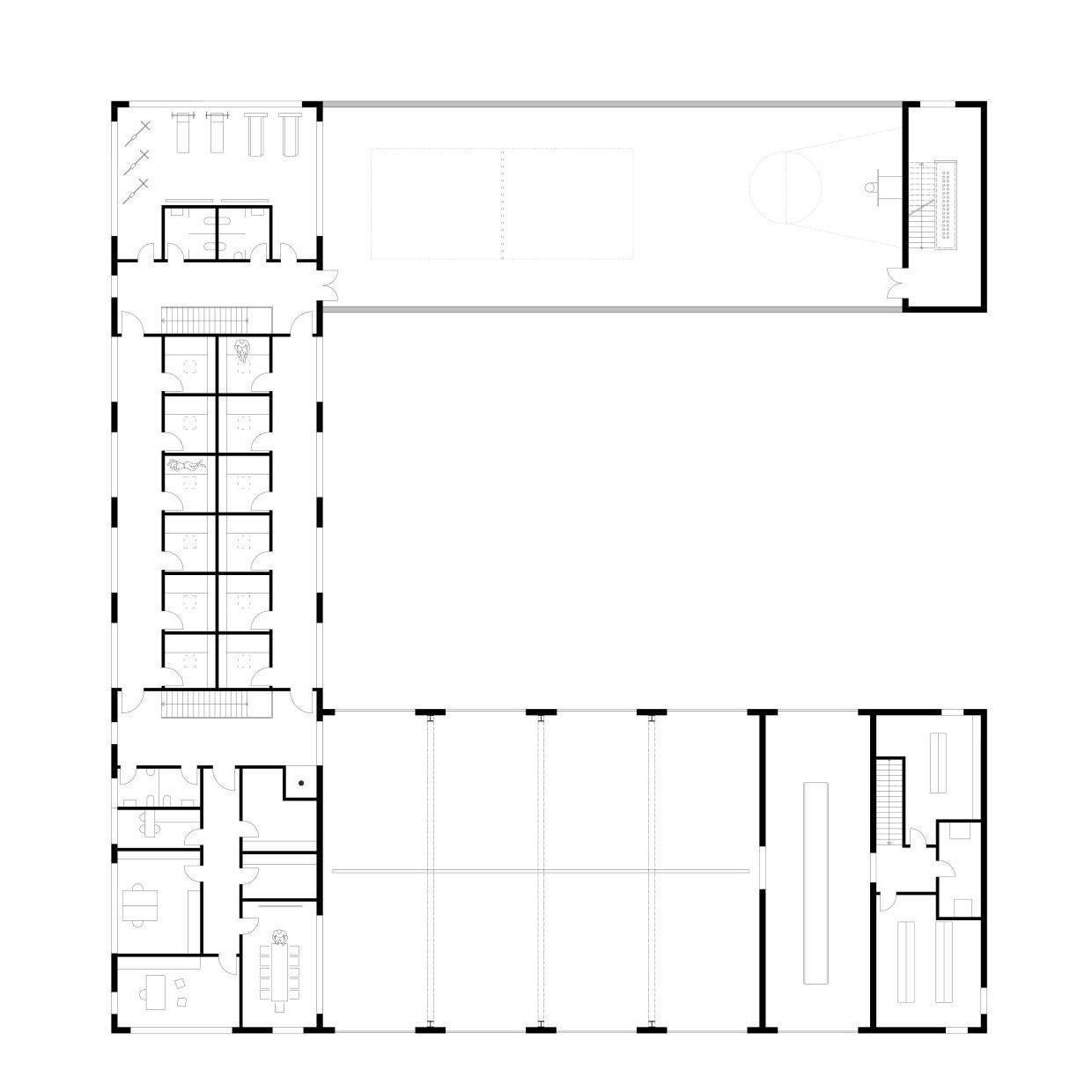
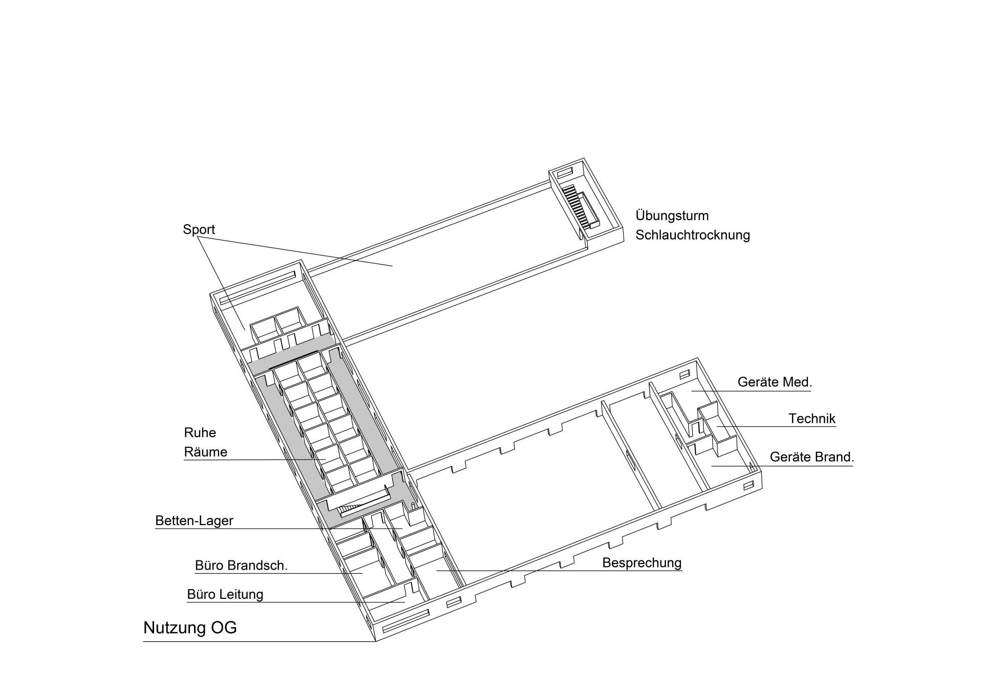
Bei dem Projekt handelt sich um eine Konzeption für eine Werkfeuerwehr die im 24 Stundenbetrieb die Unterkunft für die Mannschaft beinhalten, sowie die Fahrzeug-halle mit einem Einsatzleitwagen ELW, zwei Löschfahrzeugen HLF, einer Drehleiter DLA und eine separate Waschhalle.
In dem Objekt wurden zudem die Rettungsleitstelle und die Nebenräume bestehende aus Fitnesscenter, Prüfstelle für Handfeuerlöscher und Beatmungsgeräte integriert. Das Raumkonzept wurde durch die Planung eines Treppenturm für Übungszwecke abgerundet.






